Gartenplanung mit Haltung und Vision

Durchdachte Planung für Ihren Garten

Eine professionelle Gartenplanung schafft Klarheit, bevor der erste Spatenstich erfolgt. Sie bildet die Grundlage für eine stimmige Gesamtkomposition aus Raum, Material, Bepflanzung und Nutzung. Ziel ist ein Garten, der funktional überzeugt und gestalterisch Bestand hat.

25+

Jahre Erfahrung in
der Gartengestaltung

100%

Verlässliche und
professionelle Arbeit

500+

Fertiggestellte
Gartenkonzepte

Gartenplanung als Konzept

Analyse von Grundstück, Architektur und Nutzung bildet die Grundlage für eine Planung, die Ästhetik, Funktion und Nachhaltigkeit vereint. Jeder Bereich erhält eine klare Aufgabe, jede Linie folgt einer Idee.

Unser Ansatz

Im Mittelpunkt steht Ihre Perspektive. Planung beginnt mit Zuhören und präziser Analyse. Daraus entstehen Konzepte, die funktional klar strukturiert, gestalterisch hochwertig und technisch durchdacht sind. Jeder Entwurf versteht sich als individuelle Komposition, abgestimmt auf Ihre Lebensweise und die Gegebenheiten vor Ort.

Leistungsinhalte im Überblick

Der Ablauf

Der Weg zu Ihrer Erfolgreichen Gartenplanung

Ein klarer Ablauf schafft Transparenz und Planungssicherheit.

1
Erstgespräch

Im persönlichen Gespräch erfassen wir Ihre Wünsche, Anforderungen und Rahmenbedingungen und schaffen damit die Grundlage für eine klare Planung.

2
Ortsbegehung und Analyse

Vor Ort werden Gelände, Lichtverhältnisse, Bodenbeschaffenheit und architektonisches Umfeld analysiert, um das Projekt fundiert einzuordnen.

3
Entwurfskonzept

Auf Basis der Analyse entsteht ein strukturiertes Gestaltungskonzept, das räumliche Wirkung und Funktion nachvollziehbar darstellt.

4
Detailplanung

Materialien, Bepflanzung, Wegeführung und technische Elemente werden präzise definiert und aufeinander abgestimmt.

5
Abstimmung und Freigabe

Nach gemeinsamer Durchsicht und finaler Anpassung entsteht eine belastbare Planungsgrundlage für die Umsetzung.

Warum eine professionelle Planung wichtig ist

Eine fundierte Gartenplanung schafft Klarheit, Struktur und Sicherheit für die gesamte Umsetzung. Sie bildet die Grundlage für ein stimmiges Gesamtbild und sorgt dafür, dass gestalterische, technische und wirtschaftliche Aspekte von Anfang an sinnvoll aufeinander abgestimmt sind.

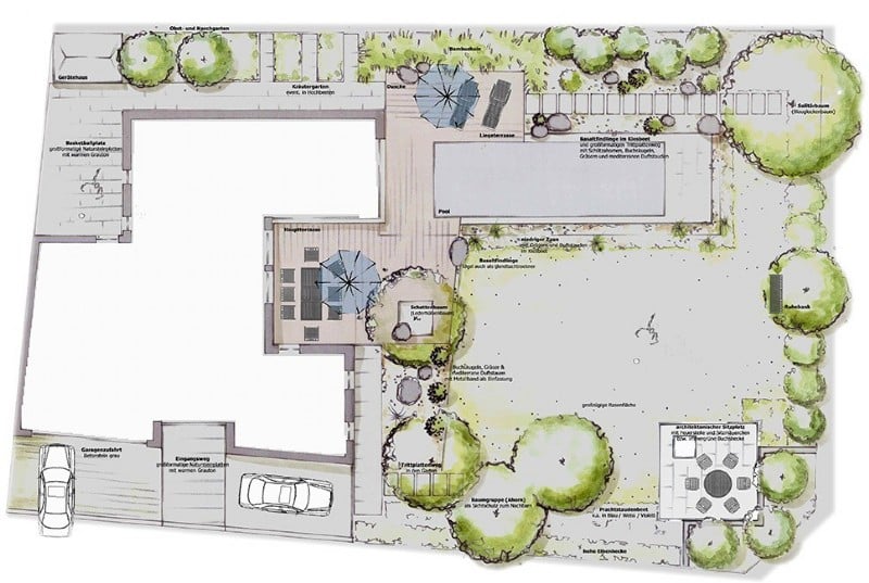
Planbeispiele

Häufige Fragen zum Thema

Für einfache Maßnahmen wie einen neuen Rasen ist eine detaillierte Planung nicht zwingend erforderlich. Bei komplexeren Themen wie Pflanzungen, Terrassen, Höhenunterschieden oder vollständigen Neugestaltungen ist sie jedoch wichtig, weil alle gestalterischen, technischen und funktionalen Aspekte gemeinsam betrachtet und gelöst werden.

Die Dauer hängt vom Umfang und der Komplexität des Projekts ab. In der Regel wird eine Gartenplanung innerhalb mehrerer Wochen erstellt. Entscheidungsprozesse, Abstimmungen und Detaillierungsgrad beeinflussen den Zeitrahmen.

In der Vorentwurfsphase werden meist zwei unterschiedliche Konzepte entwickelt, aus denen eine Variante ausgewählt wird. Diese wird anschließend finalisiert und je nach Bedarf detailliert.

Ja. Die Planung wird budgetorientiert erstellt und berücksichtigt frühzeitig eine grobe Kostenschätzung, damit Sie Entscheidungssicherheit erhalten.

Planungen werden gemeinsam mit Ihnen entwickelt und in mehreren Schritten abgestimmt. Änderungswünsche können vor der finalen Freigabe berücksichtigt werden, sodass das Ergebnis Ihren Vorstellungen entspricht.

Ja. Gerade bei kleinen Gärten oder Terrassen ist eine sorgfältige Planung wichtig, weil dort Detailentscheidungen und Raumnutzung besonders kritisch sind. Eine gute Planung hilft dabei, Funktionen optimal zu integrieren und spätere Fehlgriffe zu vermeiden.

Jetzt unverbindlich anfragen

Bereit für Ihren neuen Garten?

Fordern Sie Ihre persönliche Planung an und sichern Sie sich ein erstes Gespräch. Wir freuen uns Sie kennenzulernen!